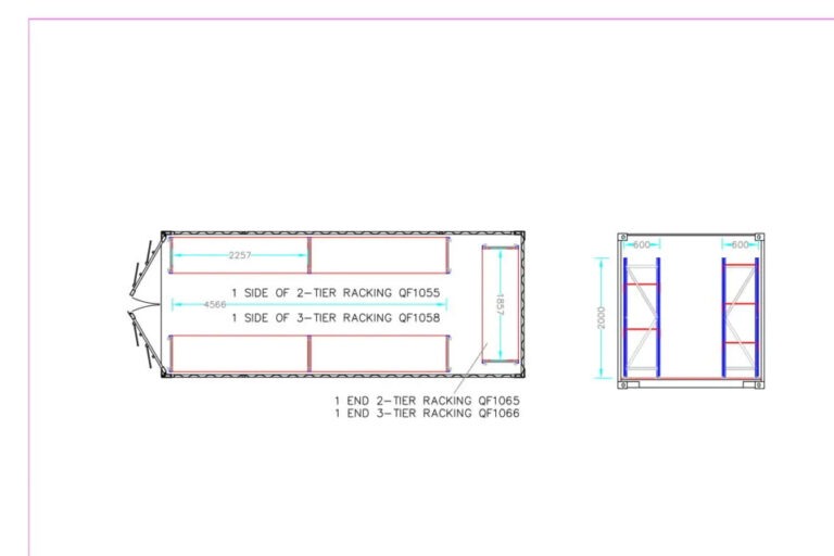
For the provision of racking in the container end, we offer a single bay of 1850mm three tier racking that can be assembled in the container. It comprises two pre-assembled 2m high and 600mm wide end frames connected by 2 beams per shelf. The beams easily slot into the end frames and include safety clips. All steel items are powder coated (blue and orange) for a scratch resistant finish and include a 25mm chipboard shelf with a capacity of 550kgs per shelf, the shelf height is adjustable in 50mm increments.It is possible to use racking on both sides of the 40ft container (choice of two or three tier). However in the 40ft there is not enough space for racking on the end of the container when using the racking down the 40ft sides . If you only want racking at the end of the container you can use two tier racking for container rear or three tier racking for container rear . See the racking diagram download for more details.This racking can also be used alone in any container.







